Prodaja, Stan Podgorica Kod Autobuske Stanice, 66 m2

Prodaja
Stan Podgorica, Kod Autobuske Stanice
Donja Gorica
118.800 €
1.800 € / m²Broj soba
2
Broj kupatila
1
Kvadratura
66 m²
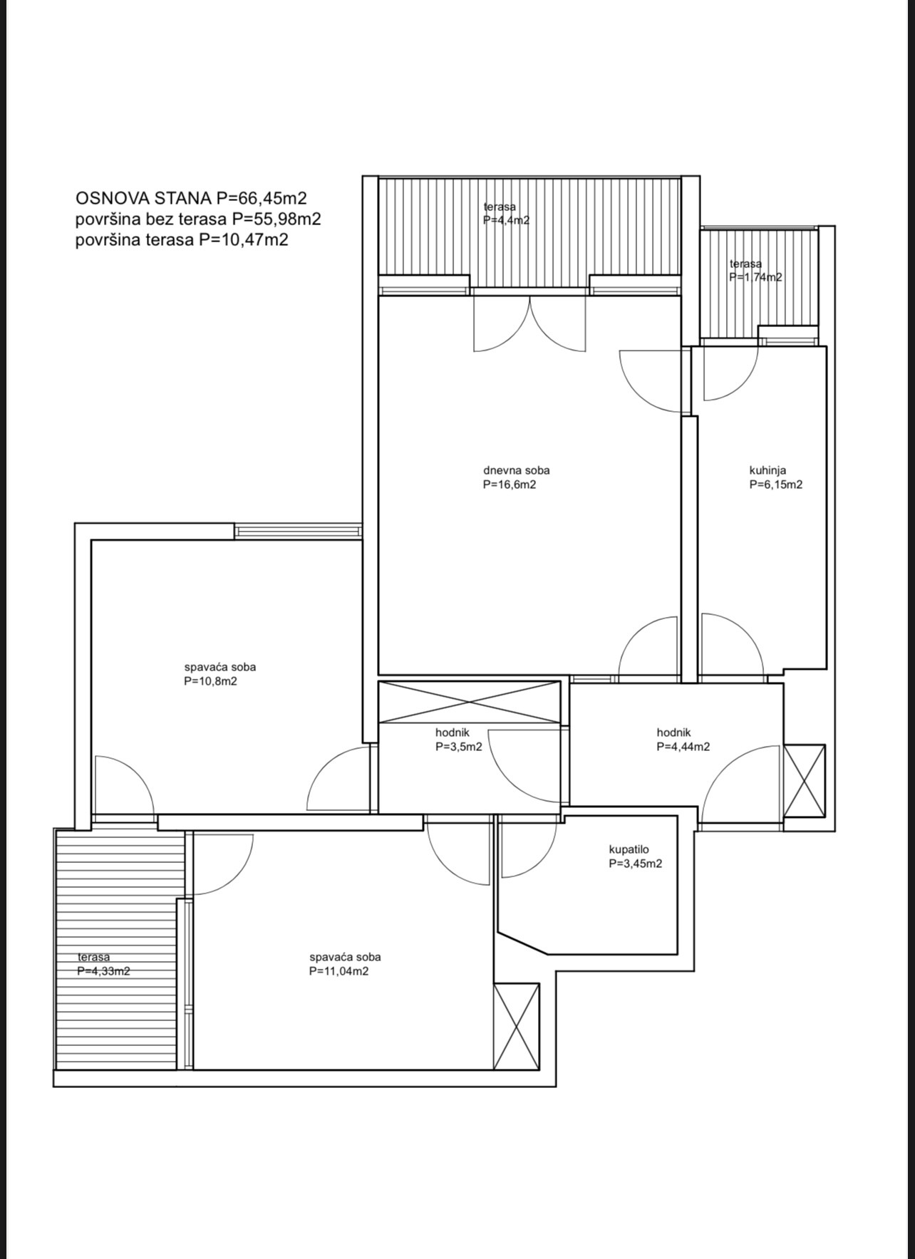
Stan se nalazi na 8. spratu zgrade, upisano je 55 m2, a ima još 11 m2 terasa koje nisu upisane. Stan ima odličnu strukturu: hodnik koji vodi od kuhinje, koja ima izlaz na manju zatvorenu terasu, zatim ima vrata koja direktno povezuju sa dnevnim boravkom. Dnevni boravak je komforan i ima izlaz na komfornu terasu koja je okrenuta južno, zatim hodnik koji povezuje spavaći dio, gdje se nalaze kupatilo i dvije spavaće sobe, koje imaju izlaz na komfornu terasu. U stan su potrebna ulaganja. U blizini se nalaze pijaca, autobuska i željeznička stanica, škole, vrtići i drugi sadržaji. Od samog centra grada zgrada je udaljena 5 minuta hoda.
Dodatne karakteristike
Opremljenost
Nenamješten
Kalkulator kredita
Učešće
20.0%
5%
50%
Iznos: 23.760 €
Kamatna stopa
4.50%
1%
8%
Rok otplate
25 god
5 god
35 god
Cijena nekretnine
118.800 €
Učešće
23.760 €
Kredit
95.040 €
Kamata
63.439 €
Iznos mjesečne rate
528 €
/
/
Slične nekretnine
/
/

















